【ご成約済】摂津市店舗・事務所
【賃貸】店舗・事務所
物件番号/c-7101179
| 賃料/管理費等 |
ご成約済 |
敷金(保証金)/礼金 |
1ヶ月(0)/1ヶ月 (税別) |
| 交通 |
阪急京都本線 正雀駅 徒歩2分 |
| 所在地 |
大阪府摂津市正雀本町1丁目27-22 |
| 築年月 |
2015年4月 (築11年) |
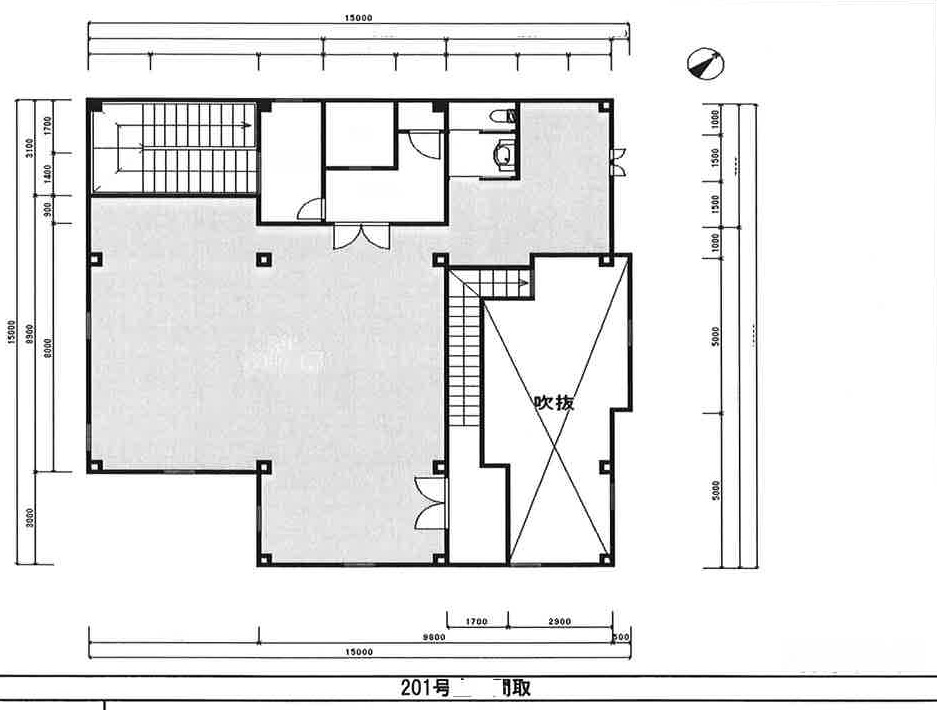
専有面積 |
123.6m² |
間取り |
|
物件詳細情報
| 所在地 |
大阪府摂津市正雀本町1丁目27-22 |
| 交通 |
阪急京都本線 正雀駅 徒歩2分 |
| 賃料 |
ご成約済 |
共益費・管理費等 |
5400円 (税別) |
| 敷金/保証金 |
1ヶ月/0 |
礼金 |
1ヶ月 (税別) |
| 敷引 |
0 |
権利金 |
0 |
| 借家契約種別 |
普通借家契約 |
契約期間 |
2年間 |
| 費用・契約備考 |
|
| 建物名 |
- |
総戸/区画数 |
- |
| 周辺環境 |
|
| 設備・条件 |
トイレ専用・オートロック・公営水道・下水・電気・エレベータ・美容室・理容室・エステサロン・その他サロン・マッサージ・整体院・歯科・病院・クリニック・美容・健康・介護その他・塾・スクール |
| 設備・条件その他 |
|
| 専有面積 |
123.6m² |
バルコニー |
- |
| 間取り |
|
| 築年月 |
2015年4月 (築11年) |
階数/所在階 |
地上5階建/2階部分 |
| 建物状態 |
完成済 |
建物構造 |
鉄骨造 |
| 特記事項 |
|
| 駐車場 |
16200円 空有 |
| 現況 |
ご成約済み |
引渡/入居時期 |
ご成約済み |
| 物件番号 |
c-7101179 |
取引態様 |
仲介 |
| 掲載開始日 |
2018年11月24日 |
次回更新予定日 |
2021年9月17日 |
このページを印刷する