南大阪不動産売却相談所
運営会社

- スター不動産 株式会社
-
TEL0725-45-5050FAX0725-45-5077
- 営業時間9:00~18:00定休日毎週火・水曜日

| 賃料/管理費等 | ご成約済 | 敷金(保証金)/礼金 | 6ヶ月(0)/3ヶ月 (税別) |
|---|---|---|---|
| 交通 | 大阪市営御堂筋線 なかもず駅 徒歩5分 南海高野線 中百舌鳥駅 徒歩5分 |
||
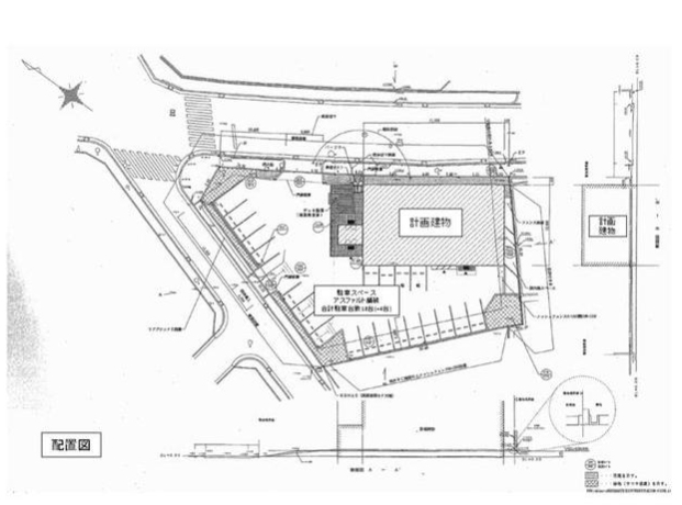
| 所在地 | 大阪府堺市北区中百舌鳥町2丁2 | ||
| 築年月 | 2001年3月 (築24年11ヶ月) |
専有面積 | 180.71m² | 間取り |
|---|
人気の中百舌鳥駅近の大型店舗です。ショールーム等に最適です。
| 所在地 | 大阪府堺市北区中百舌鳥町2丁2 |
|---|---|
| 交通 | 大阪市営御堂筋線 なかもず駅 徒歩5分 南海高野線 中百舌鳥駅 徒歩5分 |
| 賃料 | ご成約済 | 共益費・管理費等 | 0円 (税別) |
|---|---|---|---|
| 敷金/保証金 | 6ヶ月/0 | 礼金 | 3ヶ月 (税別) |
| 敷引 | - | 権利金 | 0 |
| 借家契約種別 | 普通借家契約 | 契約期間 | 5年間 |
| 費用・契約備考 | |||
| 建物名 | - | 総戸/区画数 | - |
|---|---|---|---|
| 周辺環境 | |||
| 設備・条件 | トイレ2個以上・エアコン2機以上・都市ガス・公営水道・下水・美容室・理容室・エステサロン・その他サロン・マッサージ・整体院・歯科・病院・クリニック・美容・健康・介護その他・ファッション・雑貨・コンビニ・ドラッグストア・スーパーマーケット・小売・物販その他・塾・スクール | ||
| 設備・条件その他 | |||
| 専有面積 | 180.71m² | バルコニー | - |
|---|---|---|---|
| 間取り | |
||
| 築年月 | 2001年3月 (築24年11ヶ月) |
階数/所在階 | 地上2階建/1~2階部分 |
| 建物状態 | 完成済 | 建物構造 | 鉄骨造 |
| 特記事項 | |||
| 駐車場 | 0円 空有 駐車場22台付です。 | 敷地全体面積 | 1185.25m² |
| 土地面積 | - | 用途地域 | 近隣商業 |
|---|
| 現況 | ご成約済み | 引渡/入居時期 | ご成約済み |
|---|---|---|---|
| 物件番号 | c-381 | 取引態様 | 仲介 |
| 掲載開始日 | 2016年07月28日 | 次回更新予定日 | 2021年9月17日 |