和泉市池田下町:和泉市中古一戸建て
【売買】中古戸建
物件番号/b-7101610
| 価格 |
1688万円 |
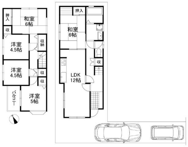
間取り |
5LDK |
| 交通 |
泉北高速鉄道 和泉中央駅 徒歩19分 |
| 所在地 |
大阪府和泉市池田下町 |
| 築年月 |
2002年2月 (築23年11ヶ月) |
専有面積 |
93.55m² |
土地面積 |
110.66m² |
令和7年9月【リフォーム済み】オール電化の5LDK
IHコンロ交換 インターホン交換 温水洗浄便座交換
クロス張替え CF張替え たたみ表替え ふすま張替え
ハウスクリーニング等 キレイに仕上がりました♪
物件詳細情報
| 所在地 |
大阪府和泉市池田下町 |
| 交通 |
泉北高速鉄道 和泉中央駅 徒歩19分 |
| 価格 |
1688万円 |
| 共益費・管理費等 |
- |
修繕積立金 |
- |
| 借地料・期間 |
- |
権利金 |
- |
| 費用・契約備考 |
|
| 建物名 |
- |
総戸/区画数 |
- |
| 周辺環境 |
北池田小学校
北池田中学校
和泉市・泉大津市の不動産売却、買取はお任せください。相続相談・無料査定を実施中。工場、倉庫、店舗、土地の事業用賃貸も取り扱いしています。 |
| 設備・条件 |
IHコンロ・システムキッチン・食器洗い乾燥機・三点給湯・洗髪洗面化粧台・独立洗面台・シャワー・バス・トイレ別・ウォシュレット・床下収納・室内洗濯機置き場・公営水道・下水・電気・駐車場有・出窓・バルコニー・オール電化 |
| 設備・条件その他 |
|
| 専有面積 |
93.55m² |
バルコニー |
- |
| 間取り |
5LDK
|
| 築年月 |
2002年2月 (築23年11ヶ月) |
階数/所在階 |
地上2階建/- |
| 建物状態 |
完成済 |
建物構造 |
木造 |
| 特記事項 |
|
| 駐車場 |
|
| 土地面積 |
110.66m²(公簿) (33.47坪) |
用途地域 |
準工業 |
| 地目 |
宅地 |
私道負担面積 |
- |
| 土地権利 |
所有権 |
都市計画 |
市街化区域 |
| 接道状況 |
一方 /南東 間口2.5m 幅員4.9m 公道 |
地勢 |
平坦 |
| 建ぺい率 |
60% |
容積率 |
196% |
| 国土法届出 |
不要 |
セットバック |
無 - |
| 現況 |
空き |
引渡/入居時期 |
相談 |
| 物件番号 |
b-7101610 |
取引態様 |
仲介 |
| 掲載開始日 |
2025年12月13日 |
次回更新予定日 |
2025年12月27日 |
このページを印刷する